Methods of calculating multi-storey buildings for progressive collapse
- Authors: Kondratyeva N.V.1, Alonov V.A.2
-
Affiliations:
- Samara State Technical University
- LLC ″SakhalinNIPI Oil and Gas″
- Issue: Vol 15, No 4 (2025)
- Pages: 10-20
- Section: BUILDING CONSTRUCTIONS, BUILDINGS AND FACILITIES
- URL: https://journals.rcsi.science/2542-0151/article/view/353003
- DOI: https://doi.org/10.17673/Vestnik.2025.04.02
- ID: 353003
Cite item
Full Text
Abstract
This article provides a detailed analysis of the methods for calculating the load-bearing structures of high-rise buildings for resistance to progressive collapse in accordance with current regulatory documents. The key aspects of these methods are considered, and a comprehensive analysis of their advantages and disadvantages is carried out, which allows us to identify the most effective approaches to designing buildings in order to increase their stability.
Full Text
В настоящее время в России, как и в других странах мира, наблюдается отчетливая тенденция к повышению этажности вновь возводимых зданий. Это явление обусловлено рядом экономических факторов, включая рост стоимости земельных участков в экономически эффективных районах, а также снижение затрат на благоустройство прилегающих территорий и прокладку инженерных сетей [1, 2].
При этом из-за более строгих требований, установленных в нормативных документах для проектирования высотных зданий (выше 75 м), и учитывая экономическую нецелесообразность строительства мало- и среднеэтажных объектов, застройщики нередко предпочитают реализацию проектов зданий повышенной этажности, включающих обычно 16‒25 этажей.
В таких зданиях часто применяется безригельный каркас, который обладает значительными архитектурными преимуществами, такими как гибкость в планировке и эстетическая выразительность. Однако данный тип конструкций не всегда обеспечивает адекватное перераспределение нагрузок в случае разрушения одного из несущих элементов при аварийной ситуации. В связи с этим проблема устойчивости зданий повышенной этажности к прогрессирующему разрушению становится особенно актуальной и требует углубленного изучения и разработки эффективных методов повышения надежности и безопасности таких зданий.
В современной научной литературе для описания непропорционального разрушения строительных конструкций применяется термин «прогрессирующее обрушение». Несмотря на то, что данный термин нередко подвергается критике, в частности из-за того, что любое разрушение развивается во времени и, следовательно, по своей природе не может быть не прогрессирующим [3], это понятие прочно закрепилось в нормативных документах. Его возникновение связывают с разрушением 22-этажного панельного дома Ронан Пойнт в Лондоне, которое произошло в 1968 г. в результате внутреннего взрыва газа на кухне квартиры на 19-м этаже [4]. Через два года данный термин был включен в британские нормативные стандарты, в рамках которых концепция прогрессирующего обрушения развивалась на протяжении 30‒35 лет. А в 2003 г. в Соединенных Штатах Америки были установлены свои первые полноценные нормы, регулирующие вопросы, связанные с прогрессирующим обрушением зданий [3].
В России в связи с социально-экономическими проблемами после распада СССР тема «прогрессирующего обрушения» долгое время не развивалась. Так, новые нормативные документы, содержащие методики расчета на прогрессирующее обрушение, начали появляться только с конца 1990-х, а ужесточение требований к новым проектируемым объектам произошло только в середине 2000-х гг., что было связано с увеличением числа аварийных ситуаций (например обрушение большепролетных покрытий Трансвааль парка и Басманного рынка (рис. 1). Требования по наличию расчетов на прогрессирующее обрушение, однако, плохо подкреплялись действующими нормативными документами. Экспертам в качестве обоснований приходилось ссылаться на п. 1.10 ГОСТ 27751-88, который не содержал конкретных указаний по выполнению данного расчета, и на территориальные нормы (МГСН 3.01-01 «Жилые здания», МГСН 4.19-05 «Многофункциональные высотные здания и комплексы», ТСН 31-332-2006 «Жилые и общественные высотные здания»). Кроме того, расчеты на прогрессирующее обрушение, выполненные в соответствии с введёнными в то время рекомендациями [5‒9], часто не находили положительного отклика экспертов.
Рис. 1. Обрушение покрытия Басманного рынка (Москва, 2006)
Fig. 1. Collapse of the Basmanny market coating (Moscow, 2006)
Сложившиеся в данной ситуации сложности и противоречия были решены благодаря вступлению в силу СП 385.1325800 в январе 2019 года. Данный нормативный документ, несмотря на существенную критику, содержал основные требования по обеспечению защиты от прогрессирующего обрушения и методики расчета, которые могли служить основанием при прохождении экспертизы. Следует подчеркнуть, что процесс актуализации данного нормативного документа продолжается, как и активные обсуждения относительно целесообразности методов проектирования, заложенных в отечественные нормы [14, 15].
В последней редакции СП 385.1325800.2018 (изм.4) расчет на прогрессирующее обрушение предлагается вести следующими методами:
- Расчет в статической постановке.
- Расчет кинематическим методом теории предельного равновесия.
- Расчет в динамической постановке.
Статический метод предполагает исключение элемента из расчета и использование измененной схемы, из которой убран поврежденный элемент. Основные достоинства данного метода – его простота и высокая скорость вычислений. Однако существенным недостатком является невозможность моделирования ситуации, когда удаление элемента происходит очень быстро, что может привести к значительным динамическим усилиям и развитию колебаний в конструкции.
Кинематический метод теории предельного равновесия предполагает, что конструкция выполнена из упругопластического материала. Конструкция рассматривается в момент образования пластических шарниров и превращения конструкции в механизм. Этот метод сложно алгоритмизировать, и в настоящее время он редко используется в проектировании.
Динамический метод расчёта зданий на предмет прогрессирующего обрушения позволяет анализировать напряжённо-деформированное состояние в каждый отдельный момент времени, выполняя множество итераций расчёта на заданные интервалы. Этот подход обеспечивает наиболее точное соответствие результатов расчёта реальным условиям. К минусам данного метода можно отнести его сложную реализацию, а также трудоемкость и значительные затраты машинного времени.
В первоначальной версии СП 385.1325800.2018 рассматривался расчет квазистатическим методом, суть которого заключалась в имитации динамического эффекта от мгновенного удаления несущего элемента расчётной схемы. При этом к конструкции прикладывались с обратным знаком усилия в удаленном элементе. Преимущества данного метода: относительная простота реализации и высокая скорость вычислений. Однако стоит отметить, что его недостатком является возможность получения отклонений от действительных значений усилий и перемещений, определяемых в ходе расчетов.
В зарубежной практике квазистатические расчеты реализуются с использованием двух основных подходов: pushdown (давить вниз) и pulldown (тянуть вниз) [3]. Pushdown-анализ подразумевает увеличение нагрузок на горизонтальные конструкции, которые непосредственно примыкают к колоннам, расположенным над удаляемой колонной. В то время как Pulldown-анализ предполагает умножать на динамический коэффициент действовавшие в удаляемом элементе усилия, приложенные с обратным знаком. Важно отметить, что указанные подходы не являются эквивалентными.
Учитывая, что кинематический метод не способен адекватно учитывать динамические реакции конструкций в условиях внезапного разрушения элементов, а также не может достоверно отразить реальное поведение здания при локальном отказе какого-либо его элемента, в дальнейшем он не рассматривается.
В целях сравнения применения различных методик рассмотрен расчет устойчивости 24-этажного жилого здания к прогрессирующему обрушению. Каждый этаж имеет высоту 3 м, а общая высота здания составляет 78 м. При этом высота от уровня проезжей части для пожарных машин до нижней границы открывающегося проема (в данном случае окна) составляет 70,5 м, на основании чего данное здание нельзя классифицировать как высотное.
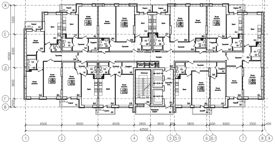
Здание имеет безригельный каркас, в качестве вертикальных несущих элементов приняты железобетонные пилоны и стены, толщина плиты перекрытия составляет 200 мм. Разрез здания и план типового этажа представлены на рис. 2 и 3. В качестве основных материалов несущих конструкций принят бетон класса B40 и стержневая арматура класса А500. Расчет здания выполнен с использованием вычислительного комплекса ЛИРА САПР. Элементы здания замоделированы с помощью конечных элементов: КЭ 210 – универсальный пространственный стержневой элемент с учетом физической нелинейности и КЭ 241 – прямоугольный элемент оболочки с учетом физической нелинейности. Нелинейные расчеты выполнялись шаговым методом, число шагов приложения нагрузки определялось вычислительным комплексом автоматически (что является рекомендованной практикой при учете физической нелинейности элементов).
Рис. 2. Разрез рассматриваемого здания
Fig. 2. Section of the building in question
Рис. 3. План типового этажа
Fig. 3. Typical Floor Plan
Армирование несущих конструкций подбиралось по результатам линейного статического расчета, при этом здание рассчитывалось на следующие типы нагрузок:
- Боковое давление грунта на стены подвального этажа.
- Собственный вес несущих конструкций (задавался автоматически при помощи соответствующей команды вычислительного комплекса).
- Нагрузка от веса полов, кровли и наружных стен.
- Нагрузка от веса перегородок.
- Полезная нагрузка на перекрытия этажей.
- Снеговая нагрузка на покрытие.
- Ветровая нагрузка (с учетом средней и пульсационной составляющей).
В расчете на прогрессирующее обрушение использовались нормативные значения нагрузок от собственного веса несущих конструкций, полов, кровли, наружных стен и перегородок, а также длительные составляющие от снеговой и полезных нагрузок.
Здание рассчитывалось на отказ наиболее нагруженного пилона первого этажа (рис. 4). В качестве критерия достижения предельного состояния конструкций рассматривалось значение предельного прогиба. Согласно СП 385.1325800.2018 прогибы изгибаемых элементов конструктивной системы для особого предельного состояния при условии обеспечения минимально допустимой длины зоны опирания (анкеровки) не должны превышать 1/30 длины пролета. Несмотря на активные дискуссии в инженерно-научном сообществе относительно целесообразности ограничения прогибов конструкций в аварийных ситуациях (с учетом мнения, что основным условием является выживаемость здания или сооружения), данное требование также позволяет контролировать предельные величины пластичности и углы поворота конструкций, что хорошо отражено в зарубежных нормах [3].
Рис. 4. Элемент, исключаемый при расчете на прогрессирующее обрушение
Fig. 4. Element, excluded when calculating progressive collapse
Рассматриваются следующие методы расчетов:
- Линейный статический расчет.
- Линейный квазистатический расчет.
- Нелинейный квазистатический расчет.
- Нелинейный динамический расчет.
Как было указано ранее, квазистатический метод расчета может выполняться при помощи двух основных подходов: pushdown и pulldown. Однако, поскольку в отечественной нормативной и справочной литературе предпочтение отдается именно pulldown-анализу [3], настоящее исследование сосредоточено на использовании этого подхода.
Для учета динамического эффекта от мгновенного удаления колонны, в квазистатическом методе усилия, действовавшие в удаленном элементе, необходимо умножать на коэффициент динамичности. В работе [12] коэффициент динамичности Kd предлагается определять по формуле
, (1)
где Kpl – коэффициент пластичности, равный отношению полного прогиба элемента к предельному упругому (для железобетонных конструкций Kpl = 1–5).
Согласно (1) следует, что при расчете в упругой стадии (Kpl = 1) коэффициент динамичности Kd = 2.
При допущении пластических деформаций в конструкции (Kpl = 2–5) коэффициент динамичности может принимать значения Kd = 1,11–1,33.
Для непереармированных железобетонных элементов при относительной высоте сжатой зоны ξ ≤ 0,25 коэффициент пластичности может быть определен по формуле, представленной в работе [2]:
, (2)
где εbmd – краевые относительные деформации сжатого бетона,
, (3)
здесь ωd – коэффициент полноты эпюры напряжения сжатой зоны бетона,
, (4)
здесь Rbd – напряжения в бетоне при динамическом нагружении;
Es – модуль упругости арматуры, 2×105 МПа;
Rsd – расчетное значение сопротивления арматуры растяжению при динамическом нагружении;
ξd – относительная высота сжатой зоны бетона при динамическом нагружении.
В результате статического расчета для армирования плиты перекрытия было выбрано использование стержней диаметром 12 мм с шагом 200 мм. В приопорных зонах предусмотрено дополнительное армирование с применением стержней диаметром 18 мм также с шагом 200 мм. Для обеспечения пластической работы конструкций в приопорных зонах было принято нижнее армирование из стержней диаметром 20 мм с шагом 100 мм.
Определим коэффициент динамичности для нелинейного квазистатического расчета:
Динамический расчет осуществлялся с использованием модуля «Динамика во времени» и проводился в три последовательных этапа:
- Определение корректного напряженно-деформированного состояния конструкции в момент времени, предшествующий отказу элемента.
- Удаление элемента конструкции в динамической нелинейной постановке за определенный промежуток времени.
- Динамический расчет конструкции с удаленным элементом в нелинейной постановке методами прямого интегрирования уравнений движения.
Определение времени отказа (т. е. временного интервала, в течение которого происходит удаление элемента) до сих пор продолжает вызывать активные дискуссии в научных кругах. Наиболее опасной считается ситуация, когда удаление элемента происходит мгновенно, поэтому работах [13, 14] предложено ограничивать это время малыми величинами (в запас), варьирующимися от 0,001 до 0,05 с. Аналогичный подход был изложен в справочнике по динамике сооружений Б. Г. Коренева [15] для расчета на импульсивные нагрузки. В пособии к СП 385.1325800 использован другой критерий для ограничения времени удаления элемента ‒ 1/10 основного периода собственных колебаний удаляемого элемента. Такой подход имеет общее с методиками расчета на аварийные взрывные воздействия, в которых круговая частота собственных колебаний элемента является одним из расчетных параметров, в некоторых случаях используемым для вычисления времени конца упругой стадии элемента, воспринимающего динамические нагрузки, действующие на малых временных интервалах. К недостаткам данного подхода можно отнести ограниченность его применения, проявляющуюся при расчетах на удаление растянутых элементов, компонентов опорных узлов, при локальном повреждении в виде разреза или трещины и т. п. [3].
В настоящей работе использовался критерий, приведенный в нормах США UFC/GSA 2016: время удаления элемента не должно превышать 1/10 периода колебаний по форме колебаний, ассоциируемой с реакцией конструкции на повреждение. В самих нормах не объясняются причины данного требования, однако, как показано в работе [3], результаты, получаемые с временем отказа, равным 0,1Т (где Т – период колебаний), незначительно отличаются от результатов, полученных при мгновенном удалении элемента (около 1 %).
Период колебаний рассчитывался с использованием модального анализа поврежденной схемы, в ходе которого была рассмотрена 21 форма колебаний (рис. 5). В результате была выбрана наиболее подходящая форма под номером 8 с периодом колебаний 0,52 с. Время интегрирования установлено равным 4 с, при шаге интегрирования 0,01с.
Рис. 5. Формы колебаний
Fig. 5. Waveforms
На рис. 6‒9 представлены эпюры распределения усилий в колоннах, расположенных как над, так и под удаляемой колонной для статического, квазистатического (линейного и нелинейного) и динамических расчетов.
Рис. 6. Эпюры усилий в колоннах, полученные в ходе линейного статического расчета
Fig. 6. Diagrams of forces in columns obtained during linear static calculation
Рис. 7. Эпюры усилий в колоннах, полученные в ходе линейного квазистатического расчета (kd = 2)
Fig. 7. Curves of forces in columns obtained during linear quasi-static calculation (kd = 2)
Рис. 8. Эпюры усилий в колоннах, полученные в ходе нелинейного квазистатического расчета (kd = 1,18)
Fig. 8. Curves of forces in columns obtained during nonlinear quasi-static calculation (kd = 1.18)
Рис. 9. Эпюры усилий в колоннах, полученные в ходе нелинейного динамического расчета
Fig. 9. Curves of forces in columns obtained during nonlinear dynamic calculation
Эпюры прогиба плиты перекрытия, расположенной над удаляемой колонной, представлены на рис. 10‒13.
Рис. 10. Эпюра прогиба плиты перекрытия в месте над удаляемой колонной для линейного статического расчета
Fig. 10. Diagram of the floor slab deflection in the place above the removed column for linear static calculation
Рис. 11. Эпюра прогиба плиты перекрытия в месте над удаляемой колонной для линейного квазистатического расчета (kd = 2)
Fig. 11. Diagram of floor slab deflection in the place above the removed column for linear quasi-static calculation (kd = 2)
Рис. 12. Эпюра прогиба плиты перекрытия в месте над удаляемой колонной для нелинейного квазистатического расчета (kd = 1,18)
Fig. 12. Diagram of floor slab deflection in the place above the removed column for nonlinear quasi-static calculation (kd = 1.18)
Рис. 13. Эпюра прогиба плиты перекрытия в месте над удаляемой колонной для нелинейного динамического расчета
Fig. 13. Diagram of the floor slab deflection in the place above the removed column for nonlinear dynamic calculation
Максимальные перемещения узла над удаленной колонной и максимальные усилия в колонне над удаленной колонной приведены в таблице.
Сводная таблица результатов
Summary Results Table
Метод расчета | Статический линейный | Квазистатич. линейный (kd = 2) | Квазистатич. нелинейный (kd = 1,18) | Динамический нелинейный |
dZ, мм (максимальное перемещение узла над удаленной колонной) | -28,11 | -55,05 | -262,69 | -234 |
N, тс | -32,17 | 811,63 | 151,11 | 17,3 |
My, тсм | 9,47 | 18,54 | 10,41 | 14,2 |
Mz, тсм | 121,95 | 255,97 | 101,24 | 103 |
Qy, тс | 60,98 | 130,04 | 52,17 | 49,3 |
Qz, тс | -5,7 | -10,85 | -5,13 | -7,04 |
Анализ полученных результатов продемонстрировал, что расчет в статической постановке показывает существенно более низкие значения усилий и перемещений по сравнению с квазистатическим и динамическими расчетами.
Кроме того, было установлено существенное расхождение между результатами линейного и нелинейного квазистатического расчета. В случае нелинейного расчета величина прогиба конструкций значительно превышает данные, полученные в рамках линейного расчета.
Наибольшее соответствие с результатами нелинейного динамического расчета наблюдается у результатов, полученных в ходе нелинейного квазистатического расчета. Однако, как видно по эпюрам усилий, данный метод расчета не может отразить реальной работы несущих конструкций здания.
Выводы
- Динамический расчет необходим для достижения более надежных и точных результатов. Однако из-за его значительной сложности и трудозатратности при расчетах на прогрессирующее обрушение представляется целесообразным использовать квазистатические расчеты с применением уточненных коэффициентов динамичности.
- Значительным фактором, оказывающим влияние на точность расчетов железобетонных конструкций зданий на прогрессирующее обрушение, является учет нелинейности. Это позволяет получить более достоверную оценку напряженно-деформированного состояния строительных конструкций, что, в свою очередь, способствует улучшению прогнозирования их устойчивости и безопасности.
- В настоящее время вопрос о выборе метода расчета на устойчивость конструкций к прогрессирующему обрушению остается актуальным и требует дальнейшего исследования.
About the authors
Nadezhda V. Kondratyeva
Samara State Technical University
Author for correspondence.
Email: samstroyisp@gmail.com
PhD in Engineering Sciences, Associate Professor of the Building Structures Chair, Head of the Samarastroytest Testing Center
Russian Federation, 443100, Samara, Molodogvardeyskaya st., 244Vladimir An. Alonov
LLC ″SakhalinNIPI Oil and Gas″
Email: alonov02@mail.ru
ORCID iD: 0009-0009-8914-7140
Construction Specialist
Russian Federation, 443086, Samara, Eroshevsky st., 3References
- Veretennikov D.B. Technologies of Planning and Construction of High-Rise Complexes within the Concept of Development of «Vertical City». Gradostroitel’stvo i arhitektura [Urban Construction and Architecture], 2023, vol. 13, no. 2, pp. 163–171. (in Russian) doi: 10.17673/Vestnik.2023.02.22
- Generalov V.P., Generalova E.M., Sokolov I.I. Features of placement of high-rise buildings in the structure of cities. Gradostroitel’stvo i arhitektura [Urban Construction and Architecture], 2019, vol. 9, no. 2, pp. 46–52. (in Russian) doi: 10.17673/Vestnik.2019.02.7
- Drobot D.Yu. Vozmozhnye tehnologii rascheta na progressirujushhee obrushenie [Possible technologies for calculating progressive collapse]. Moscow, Publishing solutions, 2020. 263 p.
- Almazov V.O., Khoi Kao Zui. Dinamika progressirujushhego razrushenija monolitnyh mnogojetazhnyh karkasov: monografija [Dynamics of progressive destruction of monolithic multi-story frames. Monograph]. Moscow, ASV Publishing House, 2013. 128 p.
- Rekomendacii po predotvrashheniju progressirujushhih obrushenij krupnopanel’nyh zdanij [Recommendations for preventing progressive collapse of large-panel buildings]. Moscow, GUP NIAC, 1999. 35 p.
- Rekomendacii po zashhite zhilyh karkasnyh zdanij pri chrezvychajnyh situacijah [Recommendations for protecting residential frame buildings in emergency situations]. Moscow, GUP NIAC, 2002. 20 p.
- Rekomendacii po zashhite zdanij s nesushhimi kirpichnymi stenami pri chrezvychajnyh situacijah [Recommendations for protecting buildings with load-bearing brick walls in emergency situations]. Moscow, GUP NIAC, 2002. 14 p.
- Rekomendacii po zashhite monolitnyh zhilyh zdanij ot progressirujushhego obrushenija [Recommendations for protecting monolithic residential buildings from progressive collapse]. Moscow, GUP NIAC, 2005. 24 p.
- Rekomendacii po zashhite vysotnyh zdanij ot progressirujushhego obrushenija [Recommendations for protecting high-rise buildings from progressive collapse]. Moscow, GUP NIAC, 2006.
- Yeremeyev P.G. Design Methods for Progressive Collapse: Harmonization of Russian and International Regulatory Documents. Promyshlennoe i grazhdanskoe stroitel’stvo [Industrial and Civil Engineering], 2022, no. 4, pp. 23‒28. (in Russian) doi: 10.33622/0869-7019.2022.04.23-28
- Travush V.I., Kolchunov V.I., Leont’yev E.V. Protection of Buildings and Structures Against Progressive Collapse within the Framework of Legislative and Regulatory Requirements. Promyshlennonoe i grazhdanskoe stroitel’stvo [Industrial and Civil Engineering], 2019, no. 2, pp. 46‒54. (in Russian) doi: 10.33622/0869-7019.2019.02.46-54
- Tikhonov I.N. Armirovanie jelementov monolitnyh zhelezobetonnyh zdanij: posobie po proektirovaniju [Reinforcement of elements of monolithic reinforced concrete buildings: a design manual]. Moscow, Research Institute of Reinforced Concrete, 2007. 170 p.
- Kudishin Yu.I., Drobot D.Yu. Survivability of structures in emergency situations. Metallicheskie zdanija [Metal buildings], iss. 1, 2008, no. 4(8), pp. 20–22; iss. 2, 2008, no. 5(9), pp. 21–33. (in Russian)
- Kudishin Yu.I. Conceptual problems of survivability of building structures. Vestnik MGSU [Bulletin of MGSU], 2009, no. 2(special), pp. 28–36. (in Russian)
- Korenev B.G. Spravochnik po dinamike sooruzhenij [Handbook of the dynamics of structures]. Moscow, Stroyizdat, 1972. 511 p.
Supplementary files














