Optimization of technological parameters for laying concrete in various form variants when producing work in cramped urban construction conditions
- Авторлар: Ryazanova G.N.1, Aleshichev V.I.1
-
Мекемелер:
- Samara State Technical University
- Шығарылым: Том 14, № 4 (2024)
- Беттер: 108-117
- Бөлім: TECHNOLOGY AND CONSTRUCTION ORGANIZATION
- URL: https://journals.rcsi.science/2542-0151/article/view/287304
- DOI: https://doi.org/10.17673/Vestnik.2024.04.16
- ID: 287304
Дәйексөз келтіру
Толық мәтін
Аннотация
Currently, there is an increasing need to improve the efficiency of the construction of monolithic structures during the construction of buildings and structures. The introduction of modern formwork systems makes it possible to optimize the execution of formwork work. Qualitative analysis of organizational and technological parameters makes it possible to increase construction efficiency, reduce labor and monetary costs when performing work on the installation of monolithic structures in cramped urban conditions.
Толық мәтін
В настоящее время возрастает необходимость повышения эффективности возведения монолитных конструкций при строительстве высотных зданий и сооружений. Для выполнения данной задачи различные строительные компании представляют свои решения данного вопроса, разрабатывая современные и эффективные опалубочные системы [1].
Согласно анализу проектных деклараций «ЕРЗ-Аналитика», статистика распределения строительных материалов среди жилых объектов в Российской Федерации показывает, что монолитное строительство имеет определенное место на рынке, а именно 21,78 % от общего объема ввода жилья на 2023 г. (рис. 1), хотя в последние годы потеряло лидирующие позиции в связи с удорожанием стоимости стали, а также уходом с отечественного рынка западных компаний [2].
Рис. 1. Распределение объемов ввода жилья в РФ
Fig. 1. Distribution of housing commissioning volumes in the Russian Federation
Монолитное бетонное и железобетонное строительство в современном мире с каждым годом становится всё популярнее. Отечественные, западные и азиатские компании, такие как Мева, Фарейшин, Дока и Пери, представляют различные опалубочные системы для разного назначения. Благодаря своим технологическим и конструктивным особенностям, современные опалубочные системы позволяют создавать различные архитектурно-конструктивные решения высотных зданий и сооружений, а также конструкции любой сложности с повышенными характеристиками по долговечности [2].
В настоящее время на российском рынке представлены различные виды опалубочных комплексов [3]:
- разборно-переставные мелкощитовые;
- разборно-переставные крупнощитовые;
- подъемно-переставные;
- блочные;
- объемно-переставные;
- скользящие;
- горизонтально-перемещаемые (катучие и тоннельные);
- пневматические;
- несъемные.
Помимо разделения по конструктивным признакам, опалубочные системы классифицируют по функциональному назначению в зависимости от типа бетонируемых конструкций:
- для получения вертикальных поверхностей (в том числе стен);
- для горизонтальных и наклонных поверхностей;
- для образования криволинейных поверхностей;
- для одновременного бетонирования стен и перекрытий, комнат и целых квартир.
По материалам формообразующих элементов опалубку подразделяют на:
- металлическую;
- деревянную;
- фанерную;
- пластмассовую;
- несъемную (пенополистирол, фибролит).
В современном строительстве высотных зданий и сооружений для создания монолитных железобетонных конструкций все чаще используют разборно-переставную крупнощитовую, балочно-ригельную и скользящую опалубки.
Крупнощитовая опалубка состоит из больших щитов, а также элементов, обеспечивающих их соединение и крепление. Щиты способны выдерживать технологические нагрузки без необходимости установки дополнительных несущих или поддерживающих конструкций. В состав щитов входит палуба, элементы жесткости и несущие компоненты. Для процесса бетонирования опалубка оснащается подмостями, подкосами для устойчивости и регулировочными домкратами. Крупнощитовая опалубка находит применение при бетонировании длинных стен, тоннелей и перекрытий.
Наиболее известными опалубочными системами являются DOKA, FRAMAX, PERI TRIO, MEVA MAMUT, а также российские аналоги Гамма, ДАК, Пекомо, Опрус, Агрисогаз и Крамос.
Преимущества данной разновидности опалубки:
- универсальное применение;
- удобство монтажа;
- высокая точность готового покрытия.
Недостатки:
- обязательная организация временной складской площадки элементов опалубочной системы на площадке строительства;
- большой вес в собранном варианте элементов опалубки;
- необходимость использования средств механизации при монтаже опалубочной системы.
Балочно-ригельная опалубка ‒ это каркасная система, состоящая из ригелей, которые соединяются с помощью специализированных крепежных элементов. В отличие от готовых щитов данная конструкция формируется непосредственно на строительной площадке из отдельных балок и ригелей [2]. Палуба, которая служит основой для бетонирования, устанавливается на балки. Такой подход позволяет гибко адаптировать систему под конкретные условия строительства и обеспечивает высокую прочность и устойчивость при выполнении работ. Балочно-ригельная опалубка идеально подходит для создания сложных форм и конструкций, что делает её востребованной в современных строительных проектах.
Данная опалубочная система позволяет создавать перекрытие любой толщины и планового очертания для любой высоты этажа. Продольные и поперечные балки, их положение и шаг между ними, а также фанера и стойки выбирают в зависимости от ситуации. Перехлест балок для перекрытий и изменяемое расположение продольных балок обеспечивает максимальную универсальность. В зависимости от нагрузки и высоты помещения в качестве опор используются стальные или алюминиевые стойки.
Преимущества балочно-ригельной опалубочной системы:
- экономное использование материалов;
- универсальное использование для различных очертаний проектируемой конструкции;
- относительная простота сбора конструкций опалубки;
- небольшой вес элементов опалубки.
Недостатки:
- обязательная организация временной складской площадки элементов опалубочной системы на площадке строительства;
- высокая трудоемкость монтажа и демонтажа относительно остальных разновидностей опалубочных систем.
Скользящая опалубка состоит из щитов, закреплённых на домкратных рамах, рабочего пола, домкратов, приводных станций и других элементов. Опалубование, распалубливание и подъем опалубки производятся без помощи грузоподъемных механизмов, что значительно ускоряет строительство при выполнении монолитных работ. На данный момент скользящую опалубочную систему применяют при возведении вертикальных конструкций железобетонных зданий и сооружений относительно большой высоты [1].
Монолитное строительство в скользящей опалубке позволяет одним комплектом опалубки, путем его переналадки, осуществлять строительство зданий различного планировочного решения и разной этажности (рис. 2).
Рис. 2. Скользящая опалубка:
1 – регулятор горизонтальности; 2 – гидравлический домкрат; 3 – домкратная рама; 4 – рабочий настил; 5 – щиты опалубки; 6 – домкратный стержень; 7 – подвесные подмости внутренние; 8 – подвесные подмости наружные; 9 – металлическая труба; 10 – наружное ограждение
Fig. 2. Sliding formwork:
1 ‒ horizontal regulator; 2 ‒ hydraulic jack; 3 ‒ jack frame; 4 ‒ working flooring; 5 ‒ formwork panels; 6 ‒ homing rod; 7 ‒ internal suspended scaffolding; 8 ‒ external suspended scaffolding; 9 ‒ metal pipe; 10 ‒ external fencing
Неоспоримым плюсом опалубочной системы является экономия территории складирования, так как основной каркас опалубочной системы устанавливается на первых этажах строящегося здания и растет вместе со зданием, опираясь на его несущий конструктив.
Помимо этого, скользящую опалубку возможно совместить с защитными экранами, что позволяет сократить опасную зону возможного падения материалов и конструкций при перемещении грузоподъемными механизмами в районе монтажного горизонта, а также уменьшить зону возможного падения непосредственно со строящегося здания [2].
Преимущества скользящей опалубочной системы:
- значительное повышение темпов строительства;
- снижение трудоемкости производства монолитных работ;
- сокращение стоимости строительства;
- уменьшение сроков производства работ;
- увеличение безопасности производства работ как для строителей, так и для жителей города.
Недостатки:
- высокая стоимость данной опалубочной системы;
- необходимость наличия инженера-технолога при начальных этапах сбора опалубки и ее дальнейшего подъема и демонтажа;
- сложность выполнения демонтажных работ опалубочного комплекса на высоте.
При подготовке к выбору технологии возведения монолитных конструкций проектируемого здания осуществляется подбор опалубочных систем.
Для современного и эффективного выполнения монолитных работ к опалубочным комплексам выдвигаются специфические требования как к самой опалубке, так и к технологии её использования [4]. При возведении монолитных конструкций зданий и сооружений особое внимание уделяется качеству готовой поверхности, что требует дополнительных характеристик от опалубочных систем.
Ключевым аспектом является деформативность опалубочного комплекса, которая напрямую влияет на прочность и качество готовых конструкций. Опалубочная система должна обеспечивать оптимальную трудоемкость выполнения работ, высокую скорость оборачиваемости и приемлемую стоимость [4].
Одним из важнейших требований является равномерность деформации элементов, предназначенных для одной функции, таких как крупноразмерные щиты стен и перекрытий. При использовании термоактивной опалубки необходимо учитывать дополнительные нагрузки и деформации, возникающие в процессе прогрева бетона.
Соединения в опалубочных комплексах должны быть быстроразъёмными и обеспечивать достаточную плотность и непроницаемость. Особое внимание следует уделять обработке сварных швов, углов и кромок для повышения долговечности и надежности конструкции.
При анализе технологии выполнения монолитных работ в выбранной опалубочной системе учитывают конструктивные особенности проектируемого здания, а также условия строительной площадки и размещения здания на нем.
Наличие стесненных городских условий, интенсивного движения городского транспорта и пешеходов в непосредственной близости от места проведения работ, сетей подземных коммуникаций, существующих зданий, ограничений поворота стрелы грузоподъемных механизмов и невозможности устройства складирования материалов на строительной площадке влияет на выбор той или иной опалубочной системы [5].
Критерии стесненности условий производства работ определяются согласно Постановлению Госстроя России от 05.03.2004 № 15/1 (ред. От 16.06.2014) «Об утверждении и введении в действие Методики определения стоимости строительной продукции на территории Российской Федерации» (вместе с «МДС 81-35.2004…»). В соответствии с данными документами стесненные условия в застроенной части городов характеризуются наличием трех из указанных ниже факторов [6]:
- интенсивное движение городского транспорта и пешеходов в непосредственной близости от места работ, обусловливающих необходимость строительства короткими захватками с полным завершением всех работ на захватке, включая восстановление разрушенных покрытий и посадку зелени;
- разветвленная сеть существующих подземных коммуникаций, подлежащих подвеске или перекладке;
- жилые или производственные здания, а также сохраняемые зеленые насаждения в непосредственной близости от места работ;
- стесненные условия складирования материалов или невозможности их складирования на строительной площадке для нормального обеспечения материалами рабочих мест;
- при строительстве объектов, когда плотность застройки объектов превышает нормативную на 20 % и более;
- при строительстве объектов, когда, в соответствии с требованиями правил техники безопасности, проектом организации строительства предусмотрено ограничение поворота стрелы башенного крана [6].
При возведении монолитных конструкций основной нагрузкой, воспринимаемой опалубкой, является давление от бетонной смеси на стенки опалубки [7].
Бетонная смесь представляет собой особую жидкость, давление которой на начальном этапе можно охарактеризовать как гидростатическое. Это означает, что давление зависит от высоты слоя залитой смеси в опалубке. По мере начала процесса схватывания бетона давление перестает увеличиваться. Поэтому расчет давления, действующего на опалубку, особенно для конструкций значительной высоты, необходимо проводить с учетом скорости бетонирования. Это важно для обеспечения надежности и устойчивости опалубочной системы в процессе заливки.
В настоящее время существует множество разнообразных методик для оценки давления свежеприготовленной бетонной смеси на опалубочные конструкции, учитывающих различные влияющие факторы. Совершенствование этих методик обусловлено стремлением сократить время бетонирования и повысить производительность бетононасосов. Это, в свою очередь, ведет к увеличению скорости укладки и высоты конструкций, что требует более точных расчетов давления на опалубку. Адаптация методов позволяет учитывать динамические изменения в процессе бетонирования и обеспечивает надежность и безопасность опалубочных систем при работе с высокими конструкциями.
Определение давления бетонной смеси на вертикальные или наклонные поверхности является весьма сложной задачей. Согласно теоретическим и эмпирическим исследованиям, результаты методов расчета бокового давления смеси имеют разноречивые результаты. Факторы, влияющие на зависимость давления свежеуложенного бетона, представлены в табл. 1.
Таблица 1. Факторы, влияющие на расчет давления свежеуложенной бетонной смеси
Table 1. Factors Influencing Calculation of Freshly Placed Concrete Mix Pressure
Бетонная смесь | Опалубочная система | Укладка бетонной смеси |
Наполнители бетона | Пропускаемость покрытия (поровое давление) | Возрастание нагрузки в месте укладки |
Размер, форма заполнителей | Площадь сечения (стена/колонна) | Состояние воздуха |
Марка цемента | Шероховатость покрытия | Послойная или непрерывная укладка |
Температура смеси | Жесткость опалубочных конструкций | Тип вибрации (внешняя или внутренняя) |
Принцип замеса | Наклон опалубки | Глубина вибрации |
Объемный вес | Вертикальная высота бетонирования | Скорость укладки по высоте |
Консистенция |
С 1963 по 1968 гг. отечественные ученые И.Г. Совалов и В.Д Топчий в результате исследований предложили определять давление бетонной смеси, используя следующие зависимости:
- При уплотнении глубинными вибраторами, высоте слоя укладываемой смеси h, м, меньшей или равной радиусу R, м, действия вибратора h ≤ R, скорости бетонирования V, меньшей 0,5 м/ч, определяется по формуле
P = p × h, кгс/м2, (1)
где p – объемная масса смеси, принимаемая для обычных тяжелых бетонов равной 2500 кг/м3.
- Аналогичным образом для V ≥ 0,5 м/ч при высоте укладываемой смеси h ≥ 1 м определяется по формуле
P = p × (0,27 × V + 0,78) × K1 × K2, кгс/м2, (2)
где К1 – коэффициент, зависящий от подвижности смеси и равный 0,8 для бетонов с осадкой конуса 0-2 см и 1,0 для смесей с Ок = 4-6 см;
К2 – коэффициент, учитывающий влияние температуры бетонной смеси и равный 1,15 для смесей с температурой 5-7 оС, 1,0 при 12-17 оС и 0,85 при 28-32 оС.
- При уплотнении наружными вибраторами при x < 4,5 м/ч и h ≤ 2R определяется по формуле
P = p × h, кгс/м2. (3)
- Аналогичным образом при V ≥ 4,5 м/ч и h > 2 м определяется по формуле
P = p × (0,27 × V + 0,78) × K1 × K2, кгс/м2. (4)
В большинстве случаев давление бетонной смеси рекомендуется ограничивать гидростатическим давлением, приближая свойства виброуплотняемой бетонной смеси к свойствам тяжелой жидкости с соответствующими значениями плотности [7].
Распределение бокового давления по высоте опалубки может быть принято по аналогии с эпюрами гидростатического давления (рис. 3). Данные эпюры удобны для выполнения расчетов, хотя дают завышенные значения Pmax. Результирующая нагрузка в данном случае будет равняться площади треугольной эпюры
Pн = (γ × p2) / 2. (5)
В данном случае фактическое распределение бокового давления определяется в нижней части эпюры криволинейным участком (рис. 3, а). Высота hmax (рис. 3, в), на которой боковое давление имеет наибольшее значение, зависит от скорости бетонирования и быстроты схватывания бетонной смеси. Для бетонов на ординарных цементах (портландцемент, шлакопортландцемент и др.) значение будет определяться по следующим формулам:
hmax = 2 / 3 × H, (6)
P = (0,4 – 0,5) × Pmax. (7)
Рис. 3. Распределение давления бетонной смеси по высоте опалубки:
а – эпюра давления теоретическая; б – то же упрощенная расчетная; в – то же треугольная расчетная
Fig. 3. Distribution of concrete mix pressure by formwork height:
a ‒ theoretical pressure profile; b ‒ the same simplified calculation; c ‒ the same triangular design
И уже в этом случае для удобства использования в практических расчетах такая эпюра заменяется трапециевидной соответствующей площади.
Помимо этого, при выполнении расчета учитывают горизонтальные нагрузки. Ветровые нагрузки принимают согласно 20.13330.2016 «Нагрузки и воздействия».
Нагрузки от сотрясений при выгрузке бетонной смеси учитывают по данным табл. 2. Нагрузки от вибрирования смеси принимают равными 400 кгс/м2 поверхности.
Таблица 2. Нагрузка от сотрясений при выгрузке бетонной смеси
Table 2. Concussion load during concrete mixture unloading
Способ укладки смеси | Горизонтальная нагрузка, кгс/м2 |
Спуск по лоткам и хоботам, а также из бетоноводов | 400 |
Выгрузка из бадей вместимостью от 0,2 до 0,8 м3 | 400 |
Выгрузка из бадей вместимостью более 0,8 м3 | 600 |
Также при использовании наружных вибраторов необходимо учитывать местное воздействие на элементы опалубочной системы, креплений и соединений.
Опалубочные системы рассчитывают на следующие вертикальные нагрузки: собственный вес; масса бетонной смеси, принимаемая равной 2500 кг/м3 для тяжелых бетонов; масса арматуры.
Нагрузку от людей и транспортировочных средств при расчете палубы, настилов и кружал опалубки перекрытий принимают равной 250 кгс/м2, нагрузку при расчете от конструкций, поддерживающих кружала, берут 150 кгс/м2, при расчете стоек лесов – 100 кгс/м2 [1].
Для учета всех нормативных нагрузок вводят коэффициенты перегрузки (табл. 3).
Таблица 3. Коэффициенты перегрузки опалубочных систем
Table 3. Formwork system overload factors
Нормативные нагрузки | Коэффициент перегрузки |
Собственная масса опалубки и лесов | 1,2 |
Масса бетона и арматуры | 1,2 |
Нагрузки от движения людей и транспортных средств | 1,3 |
Боковое давление бетонной смеси | 1,3 |
Динамические нагрузки от сотрясений при выгрузке бетонной смеси |
Прогиб элементов опалубки не должен превышать следующих показателей:
- для опалубки открытых лицевых поверхностей – 1/400 пролета;
- для закрытых поверхностей – 1/250 пролета;
- просадка поддерживающих элементов и лесов – 1/1000 пролета монолитной конструкции.
- Рассмотрим варианты бокового давления при изменении скорости подачи бетонной смеси при V1 = 3,0 м/ч и V2 = 3,5 м/ч.
Исходные данные для выполнения расчета бокового давления свежеприготовленной бетонной смеси представлены в табл. 4.
Таблица 4. Исходные данные для расчета давления свежеприготовленной бетонной смеси
Table 4. Initial data for calculation of freshly prepared concrete mixture pressure
Показатель | Ед. изм. | Вариант 1 | Вариант 2 |
Высота бетонирования (h) | м | 3,3 | 3,3 |
Скорость бетонирования (х) | м/ч | 3,0 | 3,5 |
Температура бетонной смеси (t) | еС | 15 | 15 |
Толщина стены (d) | мм | 250 | 250 |
Осадка конуса (Ок) | мм | 75 | 75 |
Объемный вес бетонной смеси (с) | кН/м3 | 25 | 25 |
Боковое давление бетонной смеси Р определяется по следующей формуле, так как V > 0,5 м/ч:
P = p × (0,27 × V + 0,78) × K1 × K2, кгс/м2,
где К1 – коэффициент, зависящий от подвижности смеси, К1 = 1,2, так как Ок = 75 мм;
К2 – коэффициент, учитывающий влияние температуры бетонной смеси, К2 = 1,0, так как t = 15 оС;
P1 = 25,0 кН/м3 × (0,27 × 3,0 м/ч + 0,78) × 1,2 × 1,0 =
= 47,7 кН/м2 .
P2 = 25,0 кН/м3 × (0,27 × 3,5 м/ч + 0,78) × 1,2 × 1,0 =
= 51,75 кН/м2 .
Следовательно, при увеличении скорости бетонирования на 0,5 м/ч боковое давление на стенки опалубки увеличивается на 8,49 % – с 47,7 до 51,75 кН/м2 (рис. 4).
Рис. 4. Распределение бокового давления в опалубке для вариантов 1 и 2
Fig. 4. Formwork Side Pressure Distribution for Cases 1 and 2
- Рассмотрим варианты бокового давления при изменении подвижности бетонной смеси при малоподвижности П2 с осадкой конуса Ок = 5 мм и П1 с осадкой конуса Ок = 3 мм.
Исходные данные для выполнения расчета бокового давления свежеприготовленной бетонной смеси представлены в табл. 5.
Таблица 5. Исходные данные для расчета давления свежеприготовленной бетонной смеси
Table 5. Initial data for calculation of freshly prepared concrete mixture pressure
Показатель | Ед. изм. | Вариант 1 | Вариант 2 |
Высота бетонирования (h) | м | 3,3 | 3,3 |
Скорость бетонирования (х) | м/ч | 3,0 | 3,0 |
Температура бетонной смеси (t) | еС | 15 | 15 |
Толщина стены (d) | мм | 250 | 250 |
Осадка конуса (Ок) | мм | 50 | 20 |
Объемный вес бетонной смеси (с) | кН/м3 | 25 | 25 |
Боковое давление бетонной смеси Р определяется по следующей формуле, так как V = 0,5 м/ч:
P = p × (0,27 × V + 0,78) × K1 × K2, кгс/м2 ,
где К1 – коэффициент, зависящий от подвижности смеси, К1 = 1,0, так как Ок = 50 мм и К1` = 0,8, так как Ок = 50 мм;
К2 – коэффициент, учитывающий влияние температуры бетонной смеси, К2 = 1,0, так как t = 15 оС;
P1 = 25,0 кН/м3 × (0,27 × 3,0 м/ч + 0,78) × 1,0 × 1,0 =
= 39,75 кН/м2 .
P2 = 25,0 кН/м3 × (0,27 × 3,0 м/ч + 0,78) × 0,8 × 1,0 = = 31,8 кН/м2.
Следовательно, при уменьшении подвижности бетонной смеси с П2 на П1 боковое давление на стенки опалубки уменьшается на 25 % – с 39,75 до 31,8 кН/м2 (рис. 5).
Рис. 5. Распределение бокового давления в опалубке для вариантов 1 и 2
Fig. 5. Formwork Side Pressure Distribution for Cases 1 and 2
- Рассмотрим варианты бокового давления при изменении объемного веса бетонной смеси при p1 = 25,0 кН/м3 и p2 = 23,0 кН/м3.
Исходные данные для выполнения расчета бокового давления свежеприготовленной бетонной смеси представлены в табл. 6.
Таблица 6. Исходные данные для расчета давления свежеприготовленной бетонной смеси
Table 6. Initial data for calculation of freshly prepared concrete mixture pressure
Показатель | Ед. изм. | Вариант 1 | Вариант 2 |
Высота бетонирования (h) | м | 3,3 | 3,3 |
Скорость бетонирования (х) | м/ч | 3,0 | 3,0 |
Температура бетонной смеси (t) | еС | 15 | 15 |
Толщина стены (d) | мм | 250 | 250 |
Осадка конуса (Ок) | мм | 50 | 50 |
Объемный вес бетонной смеси (с) | кН/м3 | 25 | 23 |
Боковое давление бетонной смеси Р определяется по следующей формуле, так как V = 0,5 м/ч:
P = p × (0,27 × V + 0,78) × K1 × K2, кгс/м2 ,
где К1 – коэффициент, зависящий от подвижности смеси, К1 = 1,0, так как Ок = 50 мм;
К2 – коэффициент, учитывающий влияние температуры бетонной смеси, К2 = 1,0, так как t = 15 оС;
P1 = 25,0 кН/м3 × (0,27 × 3,0 м/ч + 0,78) × 1,0 × 1,0 =
= 39,75 кН/м2.
P2 = 23,0 кН/м3 × (0,27 × 3,0 м/ч + 0,78) × 1,0 × 1,0 =
= 36,57 кН/м2.
Следовательно, при уменьшении объемного веса бетонной смеси с 25,0 до 23,0 кН/м3, боковое давление на стенки опалубки уменьшается на 8,69 % – с 39,75 до 36,87 кН/м2 (рис. 6).
Рис. 6. Распределение бокового давления в опалубке для вариантов 1 и 2
Fig. 6. Formwork Side Pressure Distribution for Cases 1 and 2
Анализ организационных и технологических параметров «Технологии производства опалубочных работ по устройству вертикальных конструкций в скользящей опалубке» выполняется на проектируемом 37-этажном жилом здании, располагающемся в Октябрьском районе г. Самары.
Краткие характеристики объекта строительства:
- конструктивная схема здания – каркасная с основными вертикальными элементами из монолитного железобетона (пилоны и стены);
- высота этажа 3,3 м;
- перекрытие – монолитные железобетонные плиты толщиной 250 мм;
- фундамент здания – монолитный железобетонный плитный толщиной 1900 мм;
- максимальные габаритные размеры здания в осях – 51,30 × 18,0 м;
- высота здания – 129,850 м.
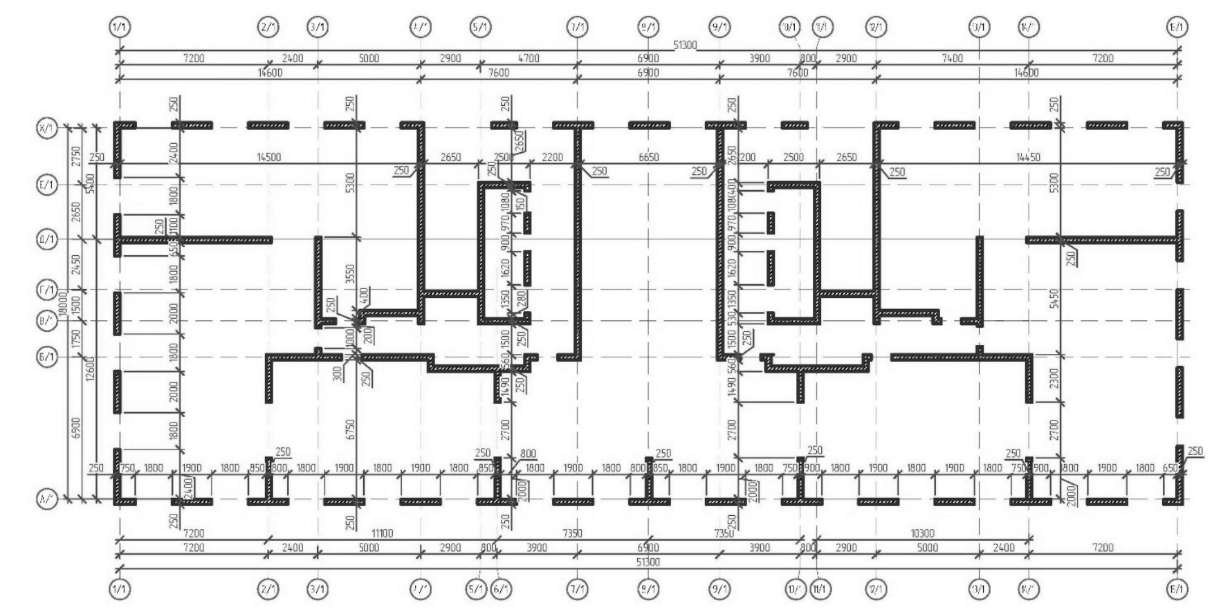
План с расположением вертикальных несущих конструкций типового этажа представлен на рис. 7.
Рис. 7. План расположения вертикальных несущих конструкций типового этажа на отм. +3.000
Fig. 7. Layout of vertical load-bearing structures of typical floor at elev. + 3.000
Выбор скользящей опалубки при строительстве жилого здания был сделан вследствие наличия стесненных городских условий, а именно отсутствия возможности складирования элементов опалубки на территории строительной площадки [5].
График производства опалубочных работ по устройству вертикальных конструкций в скользящей опалубке для 37-этажного жилого здания представлен на рис. 8.
Рис. 8. Технологическая схема производства опалубочных работ по устройству вертикальных несущих конструкций в скользящей опалубке
Fig. 8. Process Flow Diagram of Formwork for Installation of Vertical Load-Bearing Structures in Sliding Formwork
Основные технико-экономические показатели представлены в табл. 7.
Таблица 7. Технико-экономические показатели
Table 7. Technical and economic indicators
Показатель | Ед. изм. | Кол-во |
Общая протяженность осевой линии опалубки | м | 611,28 |
Суммарные затраты труда | чел.-ч | 19 386,0 |
Суммарные затраты машинного времени | маш.-ч | 1 953,5 |
Количество рабочих | чел. | 46 |
Продолжительность работ | дн | 45 |
Выработка на одного рабочего опалубочных работ | м2/чел.-ч | 0,106 |
Стоимость строительно-монтажных работ | тыс. руб. | 7 251,2 |
Выводы.
- Для повышения эффективности возведения высотных зданий требуется оптимизация выполнения опалубочных работ. Так, внедрение в технологический процесс современных опалубочных системы позволяет повысить эффективность при строительстве монолитных высотных зданий.
- При выборе современных опалубочных систем необходимо отталкиваться от конструктивных особенностей и характеристик: повышенное качество готовой поверхности, прочность конструкций опалубки, оптимальная трудоемкость производства работ, высокая оборачиваемость и оптимальная стоимость выполнения работ, наличие стесненных условий строительства и др.
- Одним из наиболее важных показателей при возведении монолитных конструкций здания является давление от бетонной смеси на стенки опалубки. В Российской Федерации расчет выполняют согласно СП.70.13330.2012 «Несущие и ограждающие конструкции», в котором учитывают высоту и скорость бетонирования, подвижность и температуру бетонной смеси. Анализ расчетов бокового давления показывает следующее:
- при увеличении скорости бетонирования с 3,0 до 3,5 м/ч боковое давление на стенки опалубки увеличивается на 8,49 % – с 47,7 до 51,75 кН/м2;
- при уменьшении подвижности бетонной смеси с П2 на П1 боковое давление на стенки опалубки уменьшается на 25 % – с 39,75 до 31,8 кН/м2;
- при уменьшении объемного веса бетонной смеси с 25,0 до 23,0 кН/м3 боковое давление на стенки опалубки уменьшается на 8,69 % – с 39,75 до 36,87 кН/м2.
- Технология устройства вертикальных железобетонных конструкций в скользящей опалубке для 37-этажного жилого здания, расположенного в г. Самаре, позволяет:
- сократить продолжительность выполнения опалубочных работ в 3,29 раза по сравнению с аналогичными работами в крупнощитовой опалубке;
- сократить трудовые затраты на использование грузоподъемных механизмов (башенного крана) на 56,22 % по сравнению с аналогичной технологией в крупнощитовой опалубке;
- уменьшить стоимость выполнения строительно-монтажных работ на 69,39 % по сравнению с аналогичной технологией в крупнощитовой опалубке.
Авторлар туралы
Galina Ryazanova
Samara State Technical University
Хат алмасуға жауапты Автор.
Email: ryazanovagn55@mail.ru
PhD in Engineering Science, Associate Professor of the Technology of Construction Organization Chair
Ресей, 443100, Samara, Molodogvardeyskaya st., 244Vyacheslav Aleshichev
Samara State Technical University
Email: aleshichev.slava@gmail.com
Post-graduate student, Assistant of the Reinforced Concrete Structures Chair
Ресей, 443100, Samara, Molodogvardeyskaya st., 244Әдебиет тізімі
- Anpilov S.M. Opalubochnye sistemy dlja monolitnogo stroitel’stva [Formwork systems for monolithic construction]. Moscow, ASV, 2005. 280 p.
- Ryazanova G.N., Aleshichev V.I. Formwork Systems Market Analysis. Perspektivnye nauchnye issledovanija: opyt, problemy i perspektivy: sbornik statej [Promising scientific research: experience, problems and prospects: collection of articles]. Ufa, 2022, pp. 224‒231. (In Russian).
- Kiyanets A.V. Sovremennye opalubochnye sistemy [Modern formwork systems]. Chelyabinsk, Ed. SUSU Center, 2015. 52 p.
- Doladov Yu.I., Zorina M.A., Khabur I.V., Bokareva E.N., Dodonova D.A. Installation Features of Spatial Latt ice Metal Covering of a Production Building in Limited Space Conditions. Gradostroitel’stvo i arhitektura [Urban Construction and Architecture], 2019, vol. 9, no. 4, pp. 74–81. (in Russian) doi: 10.17673/Vestnik.2019.04.12
- Zorina M.A., Ryazanova G.N., Ildiyarov E.V. Analysis of Organizational and Technological Solutions on the Choice of the Crane When Designing Build Plans in Construction Site Conditions. Gradostroitel’stvo i arhitektura [Urban Construction and Architecture], 2021, vol. 11, no. 2, pp. 67–76. (in Russian) doi: 10.17673/Vestnik.2021.02.11
- Zorina M.A., Ryazanova G.N. Analysis of Organizational Features of the Work of Fssembly Cranes in Cramped Construction. Gradostrotel`stvo I arhitektura [Urban Constriction and Architecture], 2022, vol. 12, no. 2, pp. 34‒40. (in Russian) doi: 10.17673/Vestnik.2022.02.06
- Ryazanova G.N., Prokopyeva A.Yu. Determination of the lateral pressure of a lightweight concrete mixture laid in formwork using existing methods. Modelirovanie processa ukladki s pozicii jekspluatacionnyh vozdejstvij [Modeling of the laying process from the perspective of operational impacts]. Samara, SamSTU, 2017, iss. 4, pp. 14‒19. (In Russian).
Қосымша файлдар










